您现在位于:首页产品中心高压、真空类产品 → ZN28A-12/1250-31.5型户外高压真空断路器
[上海山合海融商贸有限公司](繁體中文 )是国内外 品牌的低压电器产品,安全防护产品,进口核相仪,西班牙lifasa公司电容器,验电器,接地线,放电棒,绝缘毯,绝缘手套,绝缘靴,巡更巡检系统,过电压保护器,电涌保护器,双电源自动切换等产品的代理商。
 
 
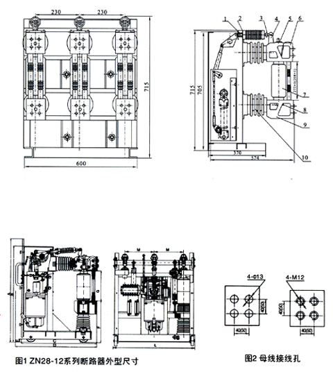
【 产品名称 】 ZN28A-12/1250-31.5型户外高压真空断路器
【 规格型号 】 ZN28A-12/1250-31.5
【 产品类别 】 真空断路器
【 产品说明 】 ZN28-12系列真空断路器为额定电压12KV,三相交流50Hz的高压户内开关设备.该产品总体结构分为开关本体与操动机构一体安装和开关本体与操动机构分离安装两种形式.一体式结构即为ZN28-12基本型.分体式结构为ZN28A-12型.适用于各种固定式开关柜,如GG-1A(Z),XGN2A10(Z)等.该产品可配用CD17,CD10A型直流电磁操动机构和CT17,CT19型弹簧储能式操动机构.
【 技术参数 】   请见下面说明